Hampden Close, Pound Hill, RH10 - Guide Price £450,000
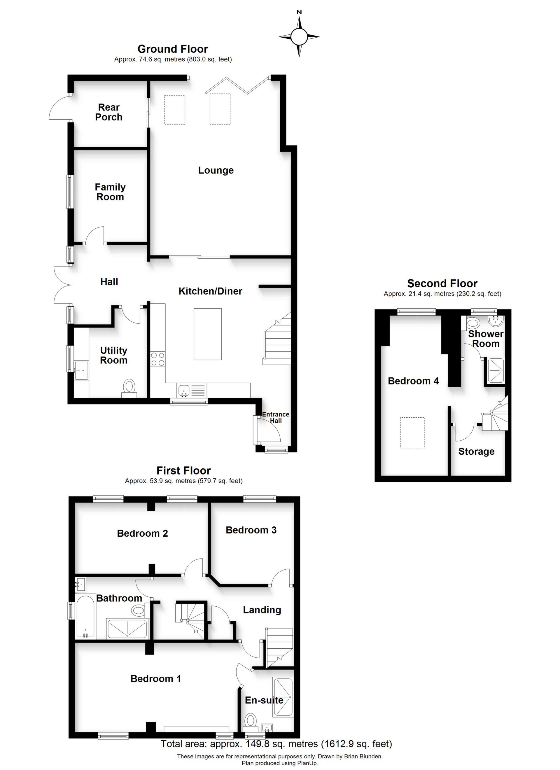
GUIDE PRICE £450,000 - 475,000 This extended four double bedrooms three-bathroom family home offers spacious accommodation throughout. Enjoy your coffee sitting in the modern kitchen/diner, relax with the family in the spacious lounge, and entertain friends on the secluded sunken patio. This house is must view!
This substantial well-presented four double bedroom, three-bathroom property is located within Pound Hill with excellent access to Three Bridges train station, Gatwick Airport, M23 north and south bound, several excellent schools and a range of local amenities. The property has been very well maintained and upgraded by the current owners. The two reception rooms. kitchen/diner, utility room and three bathrooms makes this an ideal family home for those needing to be close to multi ...Read More















